The Sherwood Business Centre is home to a vibrant community of local businesses. You can find out more about who rents our offices on Our Tenants page.
In addition to exclusive use of their own workspace, our tenants enjoy access to a range of excellent facilities and perks, including:
- Use of work pods for private calls or Teams meetings
- Use of the Board Room for team meetings or presentations
- A shared kitchen which includes tea and coffee making facilities as well as a shared fridge, microwave and toaster
- 20% discount at the Winchester bar
- Secure cycle storage and free local parking
- Networking opportunities, including a monthly after-work social event
- On-site support from the SBC team.
Interested in joining us? To enquire about office space at Sherwood Business Centre, email us at This email address is being protected from spambots. You need JavaScript enabled to view it. or call Chris Davis on 07825 267191.
Our facilities

Our reception and shared kitchen

Our Board Room

Our single-occupancy meeting pods
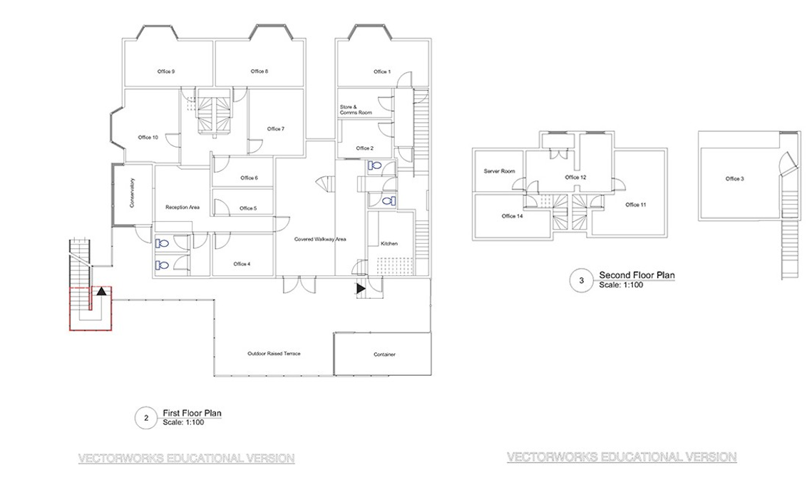
Floor Plans
Below are the floor plans of the office space at the Sherwood Business Centre.

Disabled Access
Please note that, due to the building’s age and layout, all office spaces are currently accessible only via an external staircase. Unfortunately, this may present difficulties for visitors or tenants with limited mobility.
We are happy to discuss your requirements—please contact us at This email address is being protected from spambots. You need JavaScript enabled to view it. for more information or to enquire about availability.
